Hartmann und Hünerkopf-Expeditionsmobil Radon auf Scania G 440 CB 4x4: Das Luxus-Wüstenschiff / Seite 4
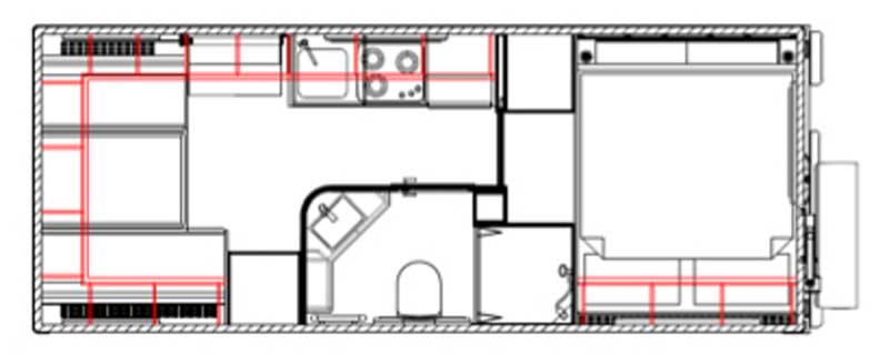
Hochwertigen Charakter zeigt auch das Badezimmer mit mosaikgefliesten Wänden, Waschtisch, Unter- und Spiegelschrank, Handtuchhalter-Heizkörper sowie einer Cassetten-Toilette. Gleich daneben: Die separate Duschkabine mit höhenverstellbarer Wandbrause. Für den Frischwasservorrat steht ein 500 Liter-Tank parat, das Brauchwasser wird in einen 200 Liter großen Tank abgeleitet.
Technische Daten Radon Scania Hartmann + Hünerkopf Basisfahrzeug: Scania G 440 CB 4x4 HHZ; 12,7-l Reihensechszylinder, Direkteinspritzer Turbodiesel (324 kW/440 PS bei 1.900 U/min, 2.300 Nm bei 1.000-1.300 U/min), 12+2-Gang Range Split-Getriebe mit Opticruise, zuschaltbarer Allradantrieb, Reifen 395/85 R 20 auf Felgen 10 x 20, Bodenfreiheit: ca. 40 cm Böschungswinkel v/h: 31°/20° Rampenwinkel: 27° Wattiefe: 55 cm Radstand: 450 cm Masse in fahrbereitem Zustand: 14.255 kg Zulässiges Gesamtgewicht: 18.000 kg (Basis-Chassis), 20.500 kg (Radon) Zuladung: 6.245 kg Abmessungen außen, L x B x H: 860 x 252 x 370 cm Abmessungen innen, L x B x H: 620 x 240 x 210 cm Maße Heckbett: 180 x 200 cm Sitz-/Schlafplätze: 2/2 Kofferaufbau: Sandwich-Bauweise, voll isoliert, kältebrückenfrei, Fenster mit Doppelverglasung Ausstattung: Truma Saphir Vario Klimaanlage; Hifi-/TV-Anlage mit Oyster Vision Sat-Anlage 85 cm; Twin-Kamera am Heck, Kamera am Lastenträger der Fahrerkabine zur Höhenkontrolle; Küchenblock mit 3-Flamm-Herd, Thetford Topline 169, versenktes Edelstahl-Spülbecken Blanco Supra 400, 1300 Liter Kissmann KB 130 ENI-Kühlschrank inklusive Gefrierfach, Mikrowelle Sharp R85 ST AA mit Doppelgrill und Heißluft; Frisch-/Abwassertank (500/180 Liter); Elektrik mit Wohnraumbatterien 4 x 200 Ah, 24V Bordnetz, Whisper Power Genvertersystem 7 KW , 3,8 KVA Generator + 3,5 KW Inverter 24V mit 90A Ladestrom, 8 x 100 W Solarmodule CS 100 von Cleversolar, Votronic Solarladeregler 480/24 Duo Digital mit Solar Computer S (dazu motortechnische Aufrüstung: verstärkte Lichtmaschine mit 2 x Votronic Ladewandler 24V/25A, Master Slave Mode mit 50A Ladestrom von der Lichtmaschine., DCDC Wandler für 24V auf 12V mit 70A); Heizung: 110 Liter Gastank, Heizung Alde 3010 Gasheizung mit integriertem 8-Liter-Warmwasserboiler + Webasto Dual Top RHA 100 Dieselheizung mit 11 Liter-Boiler, Webasto ST90 Warmwasserheizung (Fußbodenheizung in Dusche, Bad, Wohnbereich inkl. Heizgebläse); Sanitärraum mit Waschtisch und Becken inkl. Einhebelmischarmatur, Zerhacker-Toilette Tecma Silent Plus mit Bidetbrause, Fäkaltank (250 Liter), separate Duschkabine mit höhenverstellbarem Brausekopf und Einhebelmischarmatur, Falltüre
Weitere Infos: www.hartmann-alsfeld.de, www.huenerkopf.de
Text: Egbert Schwartz Fotos: Hartmann & Hünerkopf

|